LA VILLA METISSÉE
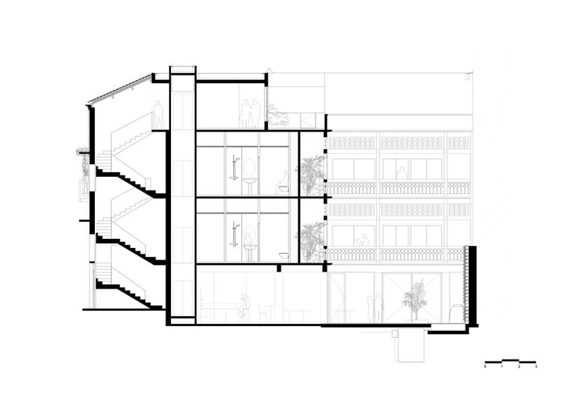
DAKAR – Réhabilitation d’un hôtel de 25 chambres  | MOA : Groupe LES LAMANTINS | Architecte : FAAR + Clément Dagneaux architecte | BET structure : GAUDILLOT | BET Fluides : MAYA concept | Acousticien : A&C
Mission : Complète | Surface : 1 700 m² SDP | Budget : Confidentiel | Calendrier : Livraison 2021

Le projet de Réhabilitation de la Villa Métissée située à Dakar Plateau (Sénégal) est le fruit d’une collaboration entre deux agences d’architecte : FAAR et Clément Dagneaux architecte. Ce bâtiment est un vestige de l’architecture coloniale du plateau de Dakar sauvé par une nouvelle volonté politique consistant à rénover et mettre en valeur le patrimoine bâti de Dakar. Cette réhabilitation devra écrire une nouvelle page de la vie du quartier, plus métissée, exemplaire sur le plan environnemental et proposant une alternative à l’hôtellerie corporate décontextualisée. En collaboration avec Clément Dagneaux architecte, nous développons pour le groupe LES LAMANTINS un projet unique et sur mesure d’un hôtel 5 étoiles qui proposera un nouveau visage et de nouveaux usages pour le quartier.























